Revenir aux offres

Location BUREAUX LAON Surface : 250m2 - Réf. 21 193

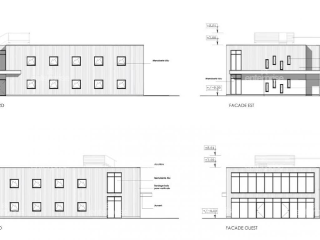
Sur la ville de Laon, en plein coeur de la dynamique Zone Voltaire, un plateau de bureaux de 250 m2 environ en RDC ou R+1 est disponible à la location.

Un plateau livré en open space avec revêtement de sol, faux plafond et climatisé. Ainsi qu'une terrasse en RDC et 10 places de parking privatives.
Des parties communes de qualité : Hall double hauteur, carrelage grès cérame, panneaux de bois lasurés, ...

Possibilité de louer 250 m2 environ en RDC et/ou 272 m2 environ R+1 ou la totalité du site soit 522 m2.

Dans vos futurs bureaux vous bénéficierez d'une belle luminosité avec des matériaux de qualité ainsi d'une bonne accessibilité à l'aide de l'emplacement stratégique, à proximité immédiate de la N2 et à moins de 10 minutes de l'A26.

Environnement à la fois tertiaire, commercial (services et restaurations) et industriel

Loyer annuel pour 250 m2 : 38.750 € Hors taxes Hors Charges
Provisions pour charges : à définir
Taxe foncière : à définir

Bail : Commercial

Honoraires de négociation : à la charge du preneur


A proximité immédiate de la N2 A moins de 10 minutes de l'A26 A moins de 10 minutes du centre-ville

Les informations sur les risques auxquels ce bien est exposé sont disponibles sur le site Géorisques.

DPE & GES

Diagnostic de performance énergétique

Diagnostic en cours de réalisation

kWh/m²/an

A

kWh/m²/an

B

kWh/m²/an

C

kWh/m²/an

D

kWh/m²/an

E

kWh/m²/an

F

kWh/m²/an

G

Indice d'émission de gaz à effet de serre

Diagnostic en cours de réalisation

CO2eq/m²/an

A

CO2eq/m²/an

B

CO2eq/m²/an

C

CO2eq/m²/an

D

CO2eq/m²/an

E

CO2eq/m²/an

F

CO2eq/m²/an

G

Programmer une visite dès maintenant ?

Remy BLEUSE

Remy BLEUSE
Consultant

03 75 240 240
  • Disponibilités
  • Vos coordonnées
  • Confirmation

Vos disponibilités
Sélectionnez jusqu'à 5 dates

Vous ne voulez pas attendre ?
Appelez-nous au 03 75 240 240

  • Contactez-nous
  • Vos coordonnées

Tableau des surfaces

Étage Type de surface Surface totale Surface divisible Loyer par an Disponibilité
Rez de Chaussée BUREAUX 249 m²   155,00 € HT/m²/an Hors Charges Nous consulter
1er étage BUREAUX 272 m²   155,00 € HT/m²/an Hors Charges Nous consulter
BUREAUX 522 m²   151,00 € HT/m²/an Hors Charges Nous consulter

Equipements et prestations



Bureaux livrés en open space (Revêtement de sol, faux plafond et climatisation)

Consulter nos honoraires
descriptif technique

Ces biens pourraient vous intéresser

Abonnez-vous à notre newsletter

Si vous êtes à la recherche d'informations exclusives sur les dernières offres disponibles, les tendances du marché local ou des conseils pertinents pour vos projets immobiliers professionnels, notre newsletter est votre source d'information incontournable. Inscrivez-vous dès à présent pour rester informé et bénéficier de nombreux avantages. Ne manquez pas l'opportunité de découvrir les meilleures options immobilières pour votre entreprise à Compiègne et dans l’Aisne.